It’s hard to believe, but we’re realistically about two months out from moving into our new house! It gets more and more unreal by the day that it’s approaching so quickly! Despite the fact it also felt like this day would never come. Today I’m sharing all the details on our carriage house design plans – including the kitchen, dining nook, living room and bathroom!

This post contains affiliate links for your shopping convenience. You can read my full disclosure policy here.
Before we jump into the carriage house plans, I’m going to link up prior posts about our new build as well as the design boards I’ve shared so far in case you missed any! I go into more about why we’re moving, some of our favorite features of our new build, as well as the initial progress and selection meetings:
- We’re Moving! Again!
- New Build Progress: Part I
- New Build Progress: Part II
- New Build Progress: Part III
And here are the design boards I’ve shared so far:
- Moody Navy Blue & Plaid Home Office Plans with Ralph Lauren Vibes
- Blue & White Striped Pool Bath Design Plans
- The Case for Color: Interior Painted Doors Other Than White
- Classic Coastal Kitchen Design Plans
- The Items We’re Re-Purchasing for Our New Home
- Classic Coastal Living Room & Dining Room Design Plans
I don’t know if it’s the fact that we wrapped up the carriage house in our current home first, or if I feel somewhat less attached to it than our main house, but it was also the first I finalized in our new home! I’d say that I had 80% of the selections picked out sometime last year, but also kind of knew things weren’t 100% yet. But, within the last week or so, I’d say we have it to 95% finalized at this point and I’m so close to wrapping up the orders.
With that, I figured it was time to share some of the design plans for the space!
Carriage House Layout
More than any space or floorplan in our home, I always find people most curious about our carriage house. I think secondary living spaces are becoming more and more common and there’s always a curiosity about how to maximize function in a tiny footprint! The space sits above the garage in both our current home and our future home.
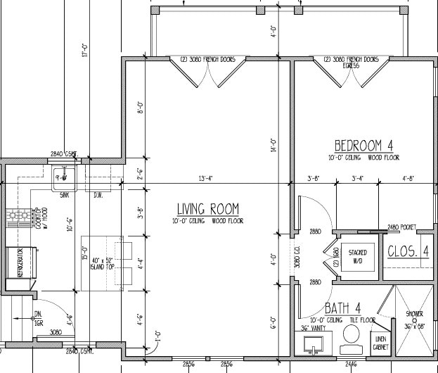
As I’m mentioned before, while I don’t plan to share our full house floorplan for our new house (not only for safety but I don’t own the rights to this floorplan and respect those boundaries since this isn’t a custom build), I thought I’d share this snippet of our carriage house layout. The square footage is very similar to our current carriage house, but with a much different layout. It’s about 650 sq ft and has a little kitchen, living room, dining nook, bedroom, bath and a laundry closet. It’s essentially a little apartment for our friends and family to enjoy when they visit.

On the bottom left of the floorplan, you’ll see the staircase that leads up to the space from our mud room/garage/side entrance.
Here you can see a recent pic from the outside of most of the space. The doors on the upper left are off the bedroom and the doors on the right are off the living space. The window on the right is the one in the kitchen above the sink.

Fall tends to be our busiest season with visitors, so we plan to have much of the carriage house ready shortly after we move-in!
Carriage House Design Plans
I feel very invested in getting this space right, because unlike our current carriage house which you can only access by going outside, I want us to use this as an extension of our home since it will be connected to the house from inside.
I plan for the dining table to be a puzzle table when we don’t have guests. This living room will also be our secondary TV space since we won’t have a loft like we currently have. So if Kurtis is watching sports, I can pop up here and watch a movie or read or whatever. So rather than planning it solely for guests, I also wanted to ensure it’s a place we can use on a more regular basis.
The challenge is that the dining, living, kitchen, and really the laundry space, are all one big area – with easy sitelines to both the bedroom and bathroom, too. So I feel like I can’t design one without the other.
But the reality is, I focused mainly on the dining space and am working on other elements around it because I know we can personally get the most use out of that and the living space. I also opted to paint both the carriage house kitchen island and the bathroom vanity the same color as all our interior doors – Benjamin Moore Silver Gray. You can read more about that here.
Let’s jump into each of the specific spaces.
Carriage House Dining Nook Design Plans
The dining space in the future carriage house may have been one of the first places I planned in the whole house. Remember when I wrote an entire post dedicated to banquette seating ideas. Let’s just say I have more than a lot of iterations of what I planned for the space. I’ll share a few below. But again, I also want it to be a spot we can use for puzzles or game nights or girls’ night crafts or whatever. I wanted it to be multi-tasking and not only used when we have guests in town. But it also needs to double as dining and a workspace when we do host family and friends.
Let’s start with what didn’t make the cut first. I shared my very early plans in this post. Below is another iteration of another design I loved most! I was legit all in on this one until we actually measured and layed everything out and decided the chairs were too big with a banquette, regardless of table size or where we placed them. The cushions have so many great options, so check them out if you like the vibe! I also temporarily tried these chairs (with the navy and white piped cushion) in the same design since they would still fit. But, once the chairs were out for us, I realized that I made most of these plans in the fall and winter months which was maybe why I was craving something moodier. So ultimately I stepped back and did a good mix of cozy but lightened up the color scheme a bit. But I still love this one so much!

ALTERNATIVE CARRIAGE HOUSE DINING NOOK SOURCES: Dining Banquette | Dining Chairs and Dining Cushions | Dining Table | Linear Chandelier | Woven Roman Shades | Sisal & Wool Rug| Faux Palm Leaf | Vase | Island Paint Color: Benjamin Moore Silver Gray
After a few months of tweaking and re-measuring and going back and forth, here is where I *think* I’ve finally landed in terms of design elements for the space. I literally have twenty versions and love most of them so it’s hard to commit to any exact one! The only thing we’ve actually ordered so far is the extendable round dining table and the light fixture.

CARRIAGE HOUSE DINING NOOK SOURCES: Pendant Light | Gallery Frames | Banquette Seating | Pair of Chippendale Dining Chairs | Extendable Round Dining Table | Sisal & Wool Rug | Faux Palm Leaf | Vase | Island & Door Paint Color: Benjamin Moore Silver Gray | Wall Paint Color: Benjamin Moore Chantilly Lace
I was thrilled to be able to score this light fixture in their open box section for less than $700 – retail is now nearly $2k! It’s a fixture I had considered for our kitchen, so I’m glad I was able to use it here. I also considered more of a lantern style, but knowing we want to use it as a game space, etc. I wanted a more diffused light. I’m a Visual Comfort diehard so when I found that open box section, I’ll always check there first!
Admittedly the banquette is insane in terms of budget (and I’m waiting to purchase hoping I can get 25% off and free shipping at some point) but I love it so much and almost think about it more than anything else I’m considering buying for the entire house. Not good. But this option is much more budget-friendly (and the first one I considered) so it’s still on the table. I just don’t love their fabric options for our space quite as much. And, after doing my recent fabric tests, I know the pinstripe Perennials is made for the long haul!
Here’s what ChatGPT said the space could look like when the table is fully extended (you can see my tutorial for making these here). The gallery wall is intended to be on the left and the window is closer to center on the banquette (which shouldn’t have a back on the right), but it gives a more realistic peek at the space!

Carriage House Kitchen Design Plans
I don’t actually have a mood board for the carriage house kitchen but I thought I’d share the cabinet layout. It was pretty much pre-determined for us since this isn’t a custom home, but we were able to tweak a few things and move the microwave to the island (in lieu of above the range so we can have a hood). We also added a pull-out trash can to the island so it didn’t have to sit out in the room. A few other tweaks were simply about cabinet type and drawers vs. cabinets. Here’s where we ended up. It’s little and tight, but has all the essentials – and unlike our current carriage house, will also have a dishwasher!


The perimeter cabinets will all be Benjamin Moore Chantilly Lace and the island will be painted Benjamin Moore Silver Gray. The doors will be a simple shaker style with an inset bead like we’ll have in the kitchen.
It’s a tiny island but there is enough space for two counter stools. TBD on whether or not I pick a backless option. I need to see the base of the island installed to get a better visual! We’ll be using these knobs and this pull on the trash can that we’ll have in our regular kitchen. The appliances will all be stainless steel, as I was not willing to pay the difference for panel ready appliances! We’ll be using this faucet (which we’ll also have in our butler’s pantry) in the kitchen. We’ve seen and felt it in person and it’s beautiful for the price!
Carriage House Living Room Design Plans
The living room is pretty influx design-wise, compared to the dining nook. They’re a shared space with the kitchen so they definitely need to work well together. So far I have ordered the sleeper sofa and the media cabinet but everything else is up for debate. We opted for a sleeper sofa because we’ve heard many times over the years how one of our guests ends up out on the sofa at night so we figured we’d make it a little comfier when they do 😉
My friend Rachel has these woven armchairs in her carriage house and we really love them. So they may end up here too, if I don’t find anything else I love! Other than that, everything else on the mood board is kind of a placeholder for now until I make my final decisions. I just wanted to share a general vibe of what I was considering.

CARRIAGE HOUSE LIVING ROOM SOURCES: Slope Arm Sleeper Sofa | Coffee Table | Woven Armchairs | Striped Rug | Palm Leaf Shadow Box | Woven Scalloped Pendant Light | Media Cabinet | Vase | Fan Palm | Island & Door Paint Color: Benjamin Moore Silver Gray | Wall Paint Color: Benjamin Moore Chantilly Lace
Carriage House Bathroom Design Plans
We had to make a few last-minute changes to the tile in this bathroom so it’s not how we initially intended it to look. There was going to be striped and a colored shower floor similar to the vanity color. But another mis-measurement by the tile store left us way too short on tile so I quickly pivoted and canceled the stripes (thankfully they had ordered way too much of the subway tiles so we had enough for that change) and then ordered this quick-ship penny tile we used in another bath.
Admittedly, the bathroom design board looks a bit white washed. But the vanity is going to be painted the Silver Gray and the shower tile looks much more warm in person now that it’s installed. I’m determined to use these designer look-for-less sconces in the house because I’ve seen them in person, and they’re so great for the price! I’m ordering them along with this woven mirror this week to make sure the tones work okay together so I have time to adjust if not. The toilet sits under the window and there’s plenty of room between it and the shower wall for some storage so I may add something like this shelf for extra storage for our guests.

SOURCES: Shower Subway Tile | Shower Floor Penny Tile | Star & Cross Floor Tile: purchased thru 8FIVE0 tile and not linkable (similar here) | Woven Roman Shade | Woven Mirror | Sconces | Bathroom Shelves | Faux Palm Leaf | Vase | Faucet | Vanity & Door Paint Color: Benjamin Moore Silver Gray | Wall Paint Color: Benjamin Moore Chantilly Lace
Carriage House Bedroom Design Plans
Much like the dining nook, I have at least a half dozen iterations of plans for the carriage house bedroom and they’re all so different. Ha! When I first started to design the space, I was really inspired by the following bedroom from this Malibu beach house from Mark D. Sikes. I really liked how cozy the space felt and loved the stripes on stripes approach. Rather than all the black accents, I was planning to layer in navy blue, something I haven’t done for awhile (but will be doing in Kurtis’ office), and overall giving it a bit more of a coastal vibe.

Despite having a set of French doors out to the balcony (which faces mostly north), and then two small square windows (which face the tall pines across the street), the room is rather dark naturally. So I really wanted to embrace the cozy factor! I’d prefer to have a colored or natural material bed to add some personality. Down the road, I could see painting the space or adding wallpaper.
Here are four of my moodboards with various beds, but keeping all the accessories the same. You can see I was also testing to see which of two nightstand colors looked the best with each option. If you missed yesterday’s post, I shared even more cute coastal bed options!




SOURCES: Striped Wingback Bed | Chambray Blue Linen Bed | Braided Seagrass Bed | French Seam Slipcover Bed | Nightstands | Rope Sconces | Honeycomb Rug | Vase | Fan Palm | Door Paint Color: Benjamin Moore Silver Gray | Wall Paint Color: Benjamin Moore Chantilly Lace
As far as the carriage house balcony and outdoor furniture goes, I have literally zero planned. I’m sure I’ll see something that catches my eye in the coming months so I’ll be sure to share when I do. I hope you enjoyed seeing more of what we envision for this space!
If you would like to follow along on more of my home decor, DIY, lifestyle, travel and other posts, I’d love to have you join me on any of the below channels:

This is all gorgeous! Wondering if you have a link to the lovely natural woven roman shade? Thank you!
Thank you! And sorry about that – I had it in the dining room on accident. Here’s the link: https://go.shopmy.us/p-55164956. It comes in tons of custom sizes!
The carriage house dining table is my all time fave. I love mine and the PB banquette. Enjoy
Oh that’s so great to hear! It looks so beautiful online but I haven’t had a chance to see it in person (I just ordered the wood sample). Thank you!
Beautiful, I love all of the bed options but really thinking you need to go for the woven seagrass, it’s gorgeous!